"Wohnen in SCHAPEN"
Neubau eines Mehrfamilienhauses in Braunschweig-Am Rübenberg
Ort:
Braunschweig, Am Rübenberg 9
Zeitraum:
2018 -2021
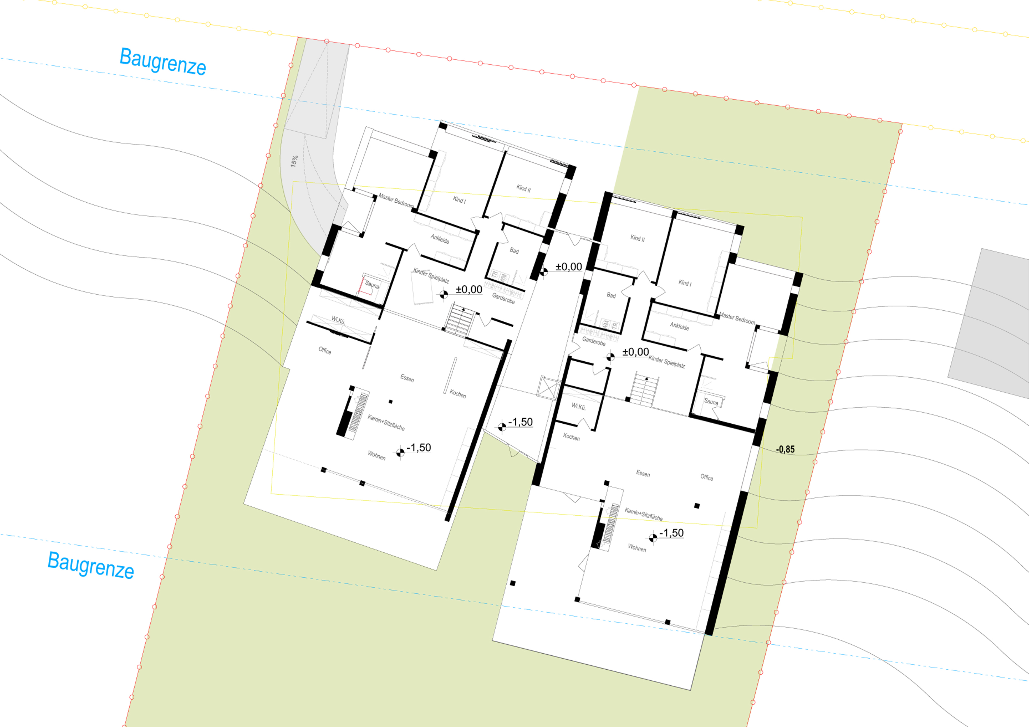
Auf dem Grundstück „Am Rübenberg 9“ ist ein Mehrfamilienhaus mit 6 Wohnparteien geplant. Durch die Splitlevel-formige Gestaltung, bettet sich das Gebäude harmonisch in das Gelände ein.
Die Erschließung des Grundstücks erfolgt über die Straße Am Rübenberg.Als Konstruktion ist eine Skelettbauweise mit zwei-schaligem Wandaufbau vorgesehen.Eine ökologische Bauweise wird vorzugsweise angestrebt.


